餐飲品牌:銀川行家港式明星花膠雞火鍋
項目坐標:深圳花膠雞火鍋,銀川花膠雞海鮮火鍋,深圳港式打邊爐,寧夏港式火鍋品牌
餐飲類型:花膠雞火鍋,海鮮火鍋,港式打邊爐
項目面積:總面積494平方米,餐區面積321平方米,后廚及姿造房、海鮮池面積173平方米
工作內容:花膠雞、海鮮火鍋店空間裝飾裝修設計,花膠雞港式火鍋店門頭招牌設計,花膠雞港式火鍋空間軟裝設計,火鍋店品牌植入空間裝飾策劃設計
項目概述:明星花膠雞,香港打邊爐。行家花膠雞火鍋是寧夏銀川乃至西北地區首家以花膠雞、鮮切牛羊肉、精品海鮮為主打的高端養生火鍋。人均消費在120-180元,以晚市及宵夜為主。定位為銀川當地食材最新鮮、味道最養生、環境最港式、接待最有面高檔特色火鍋餐廳!
門店的核心經營模式為“特色餐飲,爆品驅動,高端定位,領先銀川”。以花膠雞+精品海鮮+鮮切牛羊肉+飲品、甜品+粵港牛雜特色小吃,提供地道、新鮮、健康養生的香港打邊爐。在傳統火鍋之外,讓消費者既能感受吃火鍋的熱鬧愉悅感,還能養生美顏,與傳統火鍋拉開差異化競爭。

如何讓消費者在享受花膠雞火鍋的時候記住行家品牌,并對行家品牌產生認可并傳頌,是本次空間裝飾設計的核心工作。
銀川地處大西北,屬于內地四線城市,花膠雞屬于典型的粵式火鍋,在香港地區興起,近幾年逐漸進入大陸內地市場,深受廣大食客的歡迎。如何通過鮮明的港式地域文化展示花膠雞的地道特性,通過空間感受,菜品展示,文化訴求來表達花膠雞海鮮火鍋的養生特性?

解決方案:
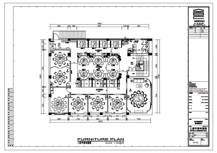
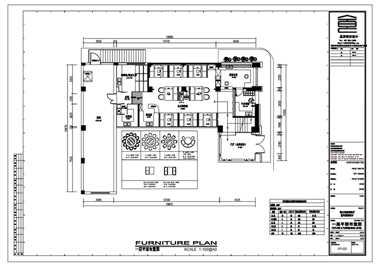
1、空間平面布局動線流暢,功能利用合,座位分布科學:
行家花膠雞海鮮火鍋,是典型的廣式火鍋,菜品涵蓋了花膠雞火鍋、涼菜、鮮切牛羊肉、海鮮等,本店還加入了港式手作奶茶、外賣牛雜等。所以在空間的功能利用上,我們在一樓設置了海鮮自選區、姿造房、牛雜檔、奶茶檔,各項功能齊全,滿足消費者的多樣化用餐美食需求,想方設法把營業流水做起來。在位置的分布上,銀川作為三線城市,是典型熟人文化,請客吃飯碰到熟悉的人是一件略微苦惱尷尬的事情,搶著買單囊中羞愧,不買單似乎不夠仗義熱情,于是,我們在二樓設置7個大包間,充分滿足商務私密接待的需求,又能避開熟人文化,實現了空間的尺度距離感,餐廳的運作高效。1樓則以4人靠背卡座為主,熱鬧但不吵雜!
2、空間裝飾緊扣品牌主題及花膠雞海鮮鍋的品類特性:
根據行家港式火鍋的品牌定位,我們餐廳的整體氛圍應該輕奢且品質感很強;熱鬧卻不喧囂,精致有特色但容易讓人親近!整個餐廳的色彩以暖色調的不銹鋼金色為主,凸顯火鍋的用餐熱鬧,同時也讓顧客更容易親近,柜體運藍色表達出鮮明的港式風格,同時也點明我們海鮮火鍋的特色。
整體氛圍去掉繁雜多余的線條,多用皮質,不銹鋼材質,呈現精致,高品質的用餐氛圍!空間的整體照明燈光以柔和面光為主,餐桌上方局部聚光燈照明,突出火鍋湯底的特色,金黃明亮;特色的吊燈,讓空間層次鮮明,港風濃郁。家具以皮革為主,金屬收邊,加上小屏風讓空間感更通透,能表達出輕奢的質感。
3、品牌文化、港式元素、養生文化以簡潔、精致方式展示:
餐廳的主入口處,人流最密集之地,也是品牌首選的亮相之處。展現品牌主形象LOGO,以香港常見的霓虹燈材質,四周放射性線條,極具識別度,既有鮮明的港式風格,又能吸引消費者打卡拍照分享;上樓梯處再用不銹鋼金屬字強調品牌名字“我就是行家”;1樓大廳一整面墻的香港城市景色照片,讓消費者有一種身臨其境的感受;二樓大廳正面形象墻以行家牌匾+立體浮雕醒獅,最經典的港式匾額傳達花膠雞悠久厚重的歷史,兩側喜慶的南派醒獅,吉祥又可愛,與品牌LOGO彼此呼應。

二樓包間分別命名為:“福、祿、壽、喜、吉、順、發”并且設計相應主題形象畫面,與整個品牌的港式風格相融合,品牌特色氛圍濃厚;且這些吉祥用語,符合消費者的內心期望,寓意上佳!
項目落地成效:
開業即客流持續旺盛,坪效優良
成了銀川當地顏值最高的打邊爐,網紅特質鮮明